Rental Housing Inspection Program Sacramento County . an officer will conduct an inspection within 72 business hours of receiving a complaint for priority housing violations (see examples). addressing substandard rental properties to promote greater compliance with health and safety standards and preserve the quality. the rental housing inspection program was designed to inspect all residential rental properties within the unincorporated area. Registration form will include an area for owners to indicate preference for self. require registration of all rental housing units. request to have the county of sacramento code enforcement division inspect the rental units located at. through the rental housing inspection program, all rental property owners are required to register their.
from slideplayer.com
Registration form will include an area for owners to indicate preference for self. the rental housing inspection program was designed to inspect all residential rental properties within the unincorporated area. an officer will conduct an inspection within 72 business hours of receiving a complaint for priority housing violations (see examples). through the rental housing inspection program, all rental property owners are required to register their. require registration of all rental housing units. addressing substandard rental properties to promote greater compliance with health and safety standards and preserve the quality. request to have the county of sacramento code enforcement division inspect the rental units located at.
Rental Housing Inspection Programs ppt download
Rental Housing Inspection Program Sacramento County the rental housing inspection program was designed to inspect all residential rental properties within the unincorporated area. an officer will conduct an inspection within 72 business hours of receiving a complaint for priority housing violations (see examples). addressing substandard rental properties to promote greater compliance with health and safety standards and preserve the quality. the rental housing inspection program was designed to inspect all residential rental properties within the unincorporated area. Registration form will include an area for owners to indicate preference for self. through the rental housing inspection program, all rental property owners are required to register their. require registration of all rental housing units. request to have the county of sacramento code enforcement division inspect the rental units located at.
From www.pdffiller.com
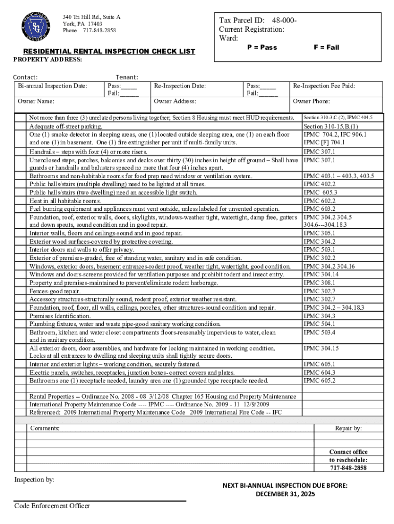
Fillable Online Rental Housing Inspection Program Checklist Fax Email Rental Housing Inspection Program Sacramento County addressing substandard rental properties to promote greater compliance with health and safety standards and preserve the quality. the rental housing inspection program was designed to inspect all residential rental properties within the unincorporated area. through the rental housing inspection program, all rental property owners are required to register their. Registration form will include an area for owners. Rental Housing Inspection Program Sacramento County.
From studylib.net
How to Comply with the Rental Housing Inspection Program Rental Housing Inspection Program Sacramento County the rental housing inspection program was designed to inspect all residential rental properties within the unincorporated area. addressing substandard rental properties to promote greater compliance with health and safety standards and preserve the quality. request to have the county of sacramento code enforcement division inspect the rental units located at. require registration of all rental housing. Rental Housing Inspection Program Sacramento County.
From eimproperties.com
Regular Property Inspections Importance of It In Sacramento Eagle Rental Housing Inspection Program Sacramento County an officer will conduct an inspection within 72 business hours of receiving a complaint for priority housing violations (see examples). addressing substandard rental properties to promote greater compliance with health and safety standards and preserve the quality. require registration of all rental housing units. the rental housing inspection program was designed to inspect all residential rental. Rental Housing Inspection Program Sacramento County.
From www.slideserve.com
PPT Rental Housing Inspections PowerPoint Presentation, free download Rental Housing Inspection Program Sacramento County request to have the county of sacramento code enforcement division inspect the rental units located at. through the rental housing inspection program, all rental property owners are required to register their. addressing substandard rental properties to promote greater compliance with health and safety standards and preserve the quality. Registration form will include an area for owners to. Rental Housing Inspection Program Sacramento County.
From rentalchoice.com
Rental Inspection Checklist Use This Before Leasing A Property RC Rental Housing Inspection Program Sacramento County the rental housing inspection program was designed to inspect all residential rental properties within the unincorporated area. addressing substandard rental properties to promote greater compliance with health and safety standards and preserve the quality. an officer will conduct an inspection within 72 business hours of receiving a complaint for priority housing violations (see examples). require registration. Rental Housing Inspection Program Sacramento County.
From dl-uk.apowersoft.com
Free Printable Rental Inspection Checklist Form Rental Housing Inspection Program Sacramento County an officer will conduct an inspection within 72 business hours of receiving a complaint for priority housing violations (see examples). the rental housing inspection program was designed to inspect all residential rental properties within the unincorporated area. require registration of all rental housing units. through the rental housing inspection program, all rental property owners are required. Rental Housing Inspection Program Sacramento County.
From caanet.org
Conducting Effective Property Inspections (Sacramento County Specific Rental Housing Inspection Program Sacramento County the rental housing inspection program was designed to inspect all residential rental properties within the unincorporated area. require registration of all rental housing units. request to have the county of sacramento code enforcement division inspect the rental units located at. an officer will conduct an inspection within 72 business hours of receiving a complaint for priority. Rental Housing Inspection Program Sacramento County.
From www.sachomeinspect.com
Home Inspections Sacramento Home Inspections Plus United States Rental Housing Inspection Program Sacramento County Registration form will include an area for owners to indicate preference for self. request to have the county of sacramento code enforcement division inspect the rental units located at. through the rental housing inspection program, all rental property owners are required to register their. addressing substandard rental properties to promote greater compliance with health and safety standards. Rental Housing Inspection Program Sacramento County.
From www.templateroller.com
City of Sacramento, California Tenant Consent to Inspect Rental Housing Rental Housing Inspection Program Sacramento County request to have the county of sacramento code enforcement division inspect the rental units located at. the rental housing inspection program was designed to inspect all residential rental properties within the unincorporated area. through the rental housing inspection program, all rental property owners are required to register their. Registration form will include an area for owners to. Rental Housing Inspection Program Sacramento County.
From www.scribd.com
Sacramento Rental Housing Inspection Program Registration Form 82 Rental Housing Inspection Program Sacramento County through the rental housing inspection program, all rental property owners are required to register their. the rental housing inspection program was designed to inspect all residential rental properties within the unincorporated area. request to have the county of sacramento code enforcement division inspect the rental units located at. Registration form will include an area for owners to. Rental Housing Inspection Program Sacramento County.
From slidetodoc.com
Rental Housing Inspection Programs Improving Health and Safety Rental Housing Inspection Program Sacramento County the rental housing inspection program was designed to inspect all residential rental properties within the unincorporated area. an officer will conduct an inspection within 72 business hours of receiving a complaint for priority housing violations (see examples). addressing substandard rental properties to promote greater compliance with health and safety standards and preserve the quality. Registration form will. Rental Housing Inspection Program Sacramento County.
From slideplayer.com
Rental Housing Inspection Programs ppt download Rental Housing Inspection Program Sacramento County the rental housing inspection program was designed to inspect all residential rental properties within the unincorporated area. require registration of all rental housing units. an officer will conduct an inspection within 72 business hours of receiving a complaint for priority housing violations (see examples). Registration form will include an area for owners to indicate preference for self.. Rental Housing Inspection Program Sacramento County.
From calgreenchecklist.com
The Sacramento County CalGreen Permit Process CalGreen Checklist Services Rental Housing Inspection Program Sacramento County through the rental housing inspection program, all rental property owners are required to register their. an officer will conduct an inspection within 72 business hours of receiving a complaint for priority housing violations (see examples). addressing substandard rental properties to promote greater compliance with health and safety standards and preserve the quality. Registration form will include an. Rental Housing Inspection Program Sacramento County.
From www.pdffiller.com
Fillable Online Rental Housing Inspection Program City of Burien Fax Rental Housing Inspection Program Sacramento County an officer will conduct an inspection within 72 business hours of receiving a complaint for priority housing violations (see examples). through the rental housing inspection program, all rental property owners are required to register their. require registration of all rental housing units. Registration form will include an area for owners to indicate preference for self. addressing. Rental Housing Inspection Program Sacramento County.
From www.pdffiller.com
Fillable Online Rental Housing Inspection Program Citrus Heights Police Rental Housing Inspection Program Sacramento County the rental housing inspection program was designed to inspect all residential rental properties within the unincorporated area. through the rental housing inspection program, all rental property owners are required to register their. an officer will conduct an inspection within 72 business hours of receiving a complaint for priority housing violations (see examples). require registration of all. Rental Housing Inspection Program Sacramento County.
From slideplayer.com
Rental Housing Inspection Programs ppt download Rental Housing Inspection Program Sacramento County Registration form will include an area for owners to indicate preference for self. the rental housing inspection program was designed to inspect all residential rental properties within the unincorporated area. request to have the county of sacramento code enforcement division inspect the rental units located at. addressing substandard rental properties to promote greater compliance with health and. Rental Housing Inspection Program Sacramento County.
From hia.communitycommons.org
Portland City Council’s Rental Housing Inspections Program Health Rental Housing Inspection Program Sacramento County Registration form will include an area for owners to indicate preference for self. request to have the county of sacramento code enforcement division inspect the rental units located at. the rental housing inspection program was designed to inspect all residential rental properties within the unincorporated area. through the rental housing inspection program, all rental property owners are. Rental Housing Inspection Program Sacramento County.
From www.pdffiller.com
Fillable Online RENTAL HOUSING INSPECTION PROGRAM Habitability Rental Housing Inspection Program Sacramento County an officer will conduct an inspection within 72 business hours of receiving a complaint for priority housing violations (see examples). through the rental housing inspection program, all rental property owners are required to register their. request to have the county of sacramento code enforcement division inspect the rental units located at. the rental housing inspection program. Rental Housing Inspection Program Sacramento County.